Logo

Neubau Mehrfamilienhaus – Heikendorf

Auf einem Grundstück im Ortskern von Heikendorf entsteht ein neues Mehrfamilienhaus mit 6 großzügigen Wohnungen.

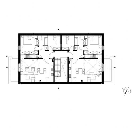
Entgegen dem allgemeinen Trend zu kleinen Wohnungen haben alle Wohnungen 4 Zimmer. Sie bieten somit ausreichend Platz für Familien mit Kindern oder auch die Möglichkeit für ein separates Arbeitszimmer, in Zeiten von Homeoffice durchaus willkommen.

Die Wohnungen im Erdgeschoss sind barrierefrei. Im Dachgeschoss verfügen die Wohnungen über eine Galerie, die zum Wohnraum hin offen ist und den großzügigen Charakter unterstreichen.

Nach Norden zur Straße ist das Gebäude als ein klarer, schlichter Baukörper ausgebildet. Die Fassade ist bewusst einfach und sachlich gestaltet. Aufgelockert wird diese Strenge durch die Vor- und Rücksprünge im Klinker-Mauerwerk der Fassade. Nach Süden sind dem Baukörper Balkone bzw. Terrassen vorgelagert.

Baudaten

Bauherr

Hans Burmann Immobilien GmbH & Co. KG

Architekt

GPK Architekten GmbH
Großmann Groth Kasbohm

Mitarbeit

Architekt Jürgen Großmann
Architektin Daniela Groth
Architekt Jens-Peter Kasbohm
Architekt Wolfgang Rath
Architektin Michaela Kientopf

Tragwerk

Dipl.-Ing. Klaus Richter
Beratender Ingenieur

Haustechnik

IBE Ingenieurbüro Eilf GmbH & Co. KG
bis Leistungsphase 4

Brandschutz

GPK Architekten GmbH

Bauzeiten

Juni 2021 bis Dezember 2022

Fertigstellung

2022